Die leerstehende Büroetage befindet sich im 1. Obergeschoss eines Neubau-Bürogebäudes. Die Büros haben anthrazitfarbenen Teppich. Die Räume können beliebig eingerichtet werden. Ein schnelles WLAN steht zur Verfügung. Es gibt eingebaute Deckenlampen sowie Deckenkühlung und Fußbodenheizung. Die Küche ist mit Herd, Kühlschrank, Küchenschränken, Spülmaschine und Spüle voll ausgestattet und funktionstüchtig. WC-Räume befinden sich ebenfalls in der Büroetage. Die Räume sind mit Jalousien verdunkelbar. Ein Aufzug führt direkt barrierefrei in die gewünschte Etage. Ebenso steht ein geräumiges Treppenhaus zur Verfügung.
Das Büro liegt in einer ruhigen Sackgasse mit Wendehammer. Unmittelbar vor dem Gebäude können Parkplätze reserviert werden. Auch Wohnwagen finden hier Platz. Weitere Parkplätze und E-Ladesäulen befinden sich in unmittelbarer Nähe. Es ist gut erreichbar, direkt an der Autobahnausfahrt zwischen Köln und Düsseldorf. Die S-Bahn mit Direktverbindung nach Köln und Düsseldorf ist fußläufig erreichbar.
Leerstand LR6073
Beschreibung
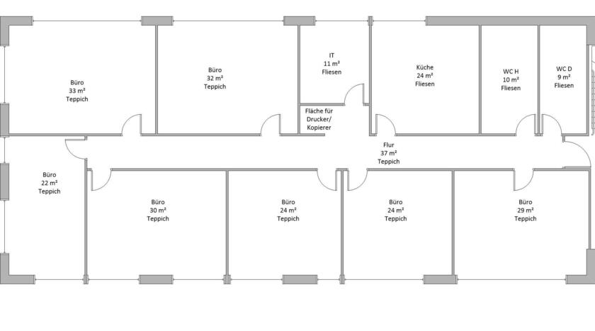
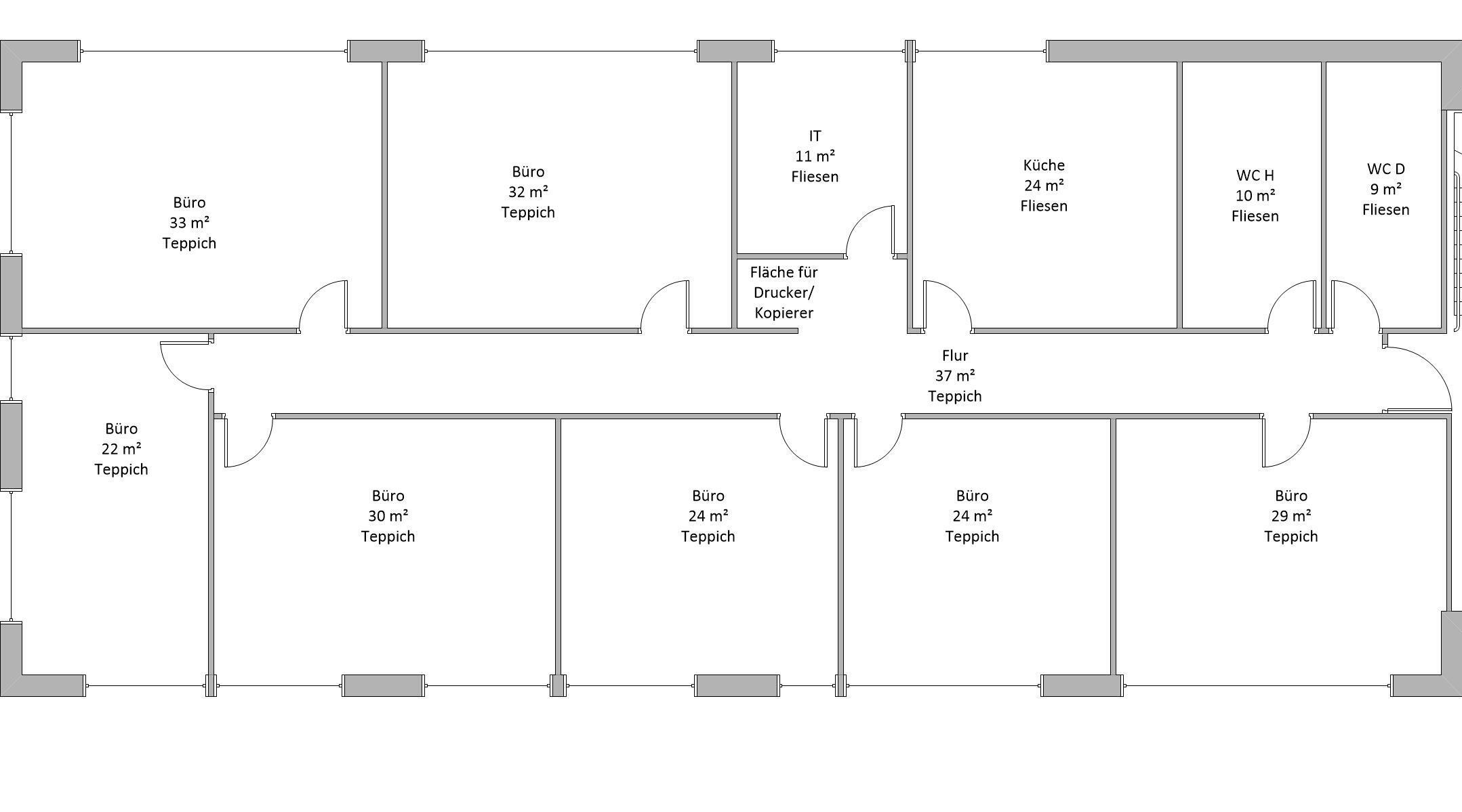
Innenräume (11)Fläche (m²) Länge (m) Breite (m) Höhe (m) Möbliert Geschoss Büroraum 33 6,48 4,97 2,75 nein 1. OG Büroraum 32 6,43 4,97 2,75 nein 1. OG Büroraum 22 6,4 3,43 2,75 nein 1. OG Büroraum 30 6,43 4,66 2,75 nein 1. OG Büroraum 24 5,15 4,66 2,75 nein 1. OG Büroraum 24 5,15 4,66 2,75 nein 1. OG Büroraum 29 6,22 4,66 2,75 nein 1. OG WC 10 4,97 2,01 2,5 nein 1. OG WC 9 4,97 1,81 2,5 nein 1. OG Küche 24 4,82 4,97 2,75 nein 1. OG Flur 33 22 1,5 2,75 nein 1. OG
- Büroraum (1. OG)Fläche: 33 m²Länge: 6,48 mBreite: 4,97 mHöhe: 2,75 mmöbliert: nein
- Büroraum (1. OG)Fläche: 32 m²Länge: 6,43 mBreite: 4,97 mHöhe: 2,75 mmöbliert: nein
- Büroraum (1. OG)Fläche: 22 m²Länge: 6,4 mBreite: 3,43 mHöhe: 2,75 mmöbliert: nein
- Büroraum (1. OG)Fläche: 30 m²Länge: 6,43 mBreite: 4,66 mHöhe: 2,75 mmöbliert: nein
- Büroraum (1. OG)Fläche: 24 m²Länge: 5,15 mBreite: 4,66 mHöhe: 2,75 mmöbliert: nein
- Büroraum (1. OG)Fläche: 24 m²Länge: 5,15 mBreite: 4,66 mHöhe: 2,75 mmöbliert: nein
- Büroraum (1. OG)Fläche: 29 m²Länge: 6,22 mBreite: 4,66 mHöhe: 2,75 mmöbliert: nein
- WC (1. OG)Fläche: 10 m²Länge: 4,97 mBreite: 2,01 mHöhe: 2,5 mmöbliert: nein
- WC (1. OG)Fläche: 9 m²Länge: 4,97 mBreite: 1,81 mHöhe: 2,5 mmöbliert: nein
- Küche (1. OG)Fläche: 24 m²Länge: 4,82 mBreite: 4,97 mHöhe: 2,75 mmöbliert: nein
- Flur (1. OG)Fläche: 33 m²Länge: 22 mBreite: 1,5 mHöhe: 2,75 mmöbliert: nein
| Fläche (m²) | Länge (m) | Breite (m) | Höhe (m) | Möbliert | Geschoss | |
|---|---|---|---|---|---|---|
| Büroraum | 33 | 6,48 | 4,97 | 2,75 | nein | 1. OG |
| Büroraum | 32 | 6,43 | 4,97 | 2,75 | nein | 1. OG |
| Büroraum | 22 | 6,4 | 3,43 | 2,75 | nein | 1. OG |
| Büroraum | 30 | 6,43 | 4,66 | 2,75 | nein | 1. OG |
| Büroraum | 24 | 5,15 | 4,66 | 2,75 | nein | 1. OG |
| Büroraum | 24 | 5,15 | 4,66 | 2,75 | nein | 1. OG |
| Büroraum | 29 | 6,22 | 4,66 | 2,75 | nein | 1. OG |
| WC | 10 | 4,97 | 2,01 | 2,5 | nein | 1. OG |
| WC | 9 | 4,97 | 1,81 | 2,5 | nein | 1. OG |
| Küche | 24 | 4,82 | 4,97 | 2,75 | nein | 1. OG |
| Flur | 33 | 22 | 1,5 | 2,75 | nein | 1. OG |
- Büroraum (1. OG)Fläche: 33 m²Länge: 6,48 mBreite: 4,97 mHöhe: 2,75 mmöbliert: nein
- Büroraum (1. OG)Fläche: 32 m²Länge: 6,43 mBreite: 4,97 mHöhe: 2,75 mmöbliert: nein
- Büroraum (1. OG)Fläche: 22 m²Länge: 6,4 mBreite: 3,43 mHöhe: 2,75 mmöbliert: nein
- Büroraum (1. OG)Fläche: 30 m²Länge: 6,43 mBreite: 4,66 mHöhe: 2,75 mmöbliert: nein
- Büroraum (1. OG)Fläche: 24 m²Länge: 5,15 mBreite: 4,66 mHöhe: 2,75 mmöbliert: nein
- Büroraum (1. OG)Fläche: 24 m²Länge: 5,15 mBreite: 4,66 mHöhe: 2,75 mmöbliert: nein
- Büroraum (1. OG)Fläche: 29 m²Länge: 6,22 mBreite: 4,66 mHöhe: 2,75 mmöbliert: nein
- WC (1. OG)Fläche: 10 m²Länge: 4,97 mBreite: 2,01 mHöhe: 2,5 mmöbliert: nein
- WC (1. OG)Fläche: 9 m²Länge: 4,97 mBreite: 1,81 mHöhe: 2,5 mmöbliert: nein
- Küche (1. OG)Fläche: 24 m²Länge: 4,82 mBreite: 4,97 mHöhe: 2,75 mmöbliert: nein
- Flur (1. OG)Fläche: 33 m²Länge: 22 mBreite: 1,5 mHöhe: 2,75 mmöbliert: nein
Außenbereiche (0)
Für diese Location werden keine Außenbereiche angeboten.
Weitere Ausstattung
- Drehstrom
- Hausstrom
- Heizung
- Wasseranschluss
- WiFi/Internet
- Lastenaufzug
- Personenaufzug
Lage & Region
Karte zeigen





































